- Woonoppervlakte
- Circa 85 m²
- Inhoud
- Circa 281 m³
- Bouwjaar
- Gebouwd in 1992
- Aantal kamers
- 3 kamers (2 slaapkamers)
Stel je voor: je eigen voordeur, twee verdiepingen woonplezier en een royaal zuidwest-georiënteerd dakterras. Deze goed onderhouden hoek-maisonnette van 85m² uit 1992 voelt als een eengezinswoning en is na de recente verbeteringen helemaal klaar voor een nieuwe bewoner.
RECENT GEMODERNISEERD EN INSTAPKLAAR
De afgelopen jaren is er flink geïnvesteerd in deze woning. In 2021 zijn zowel de keuken als badkamer volledig vernieuwd, waardoor je beschikt over moderne voorzieningen met een frisse uitstraling. Dit jaar werden alle kozijnen (op de voordeur na) vervangen inclusief energiezuinige HR++ beglazing, wat zorgt voor beter comfort en lagere energielasten. Met energielabel B en airconditioning ben je het hele jaar door verzekerd van een aangenaam binnenklimaat.
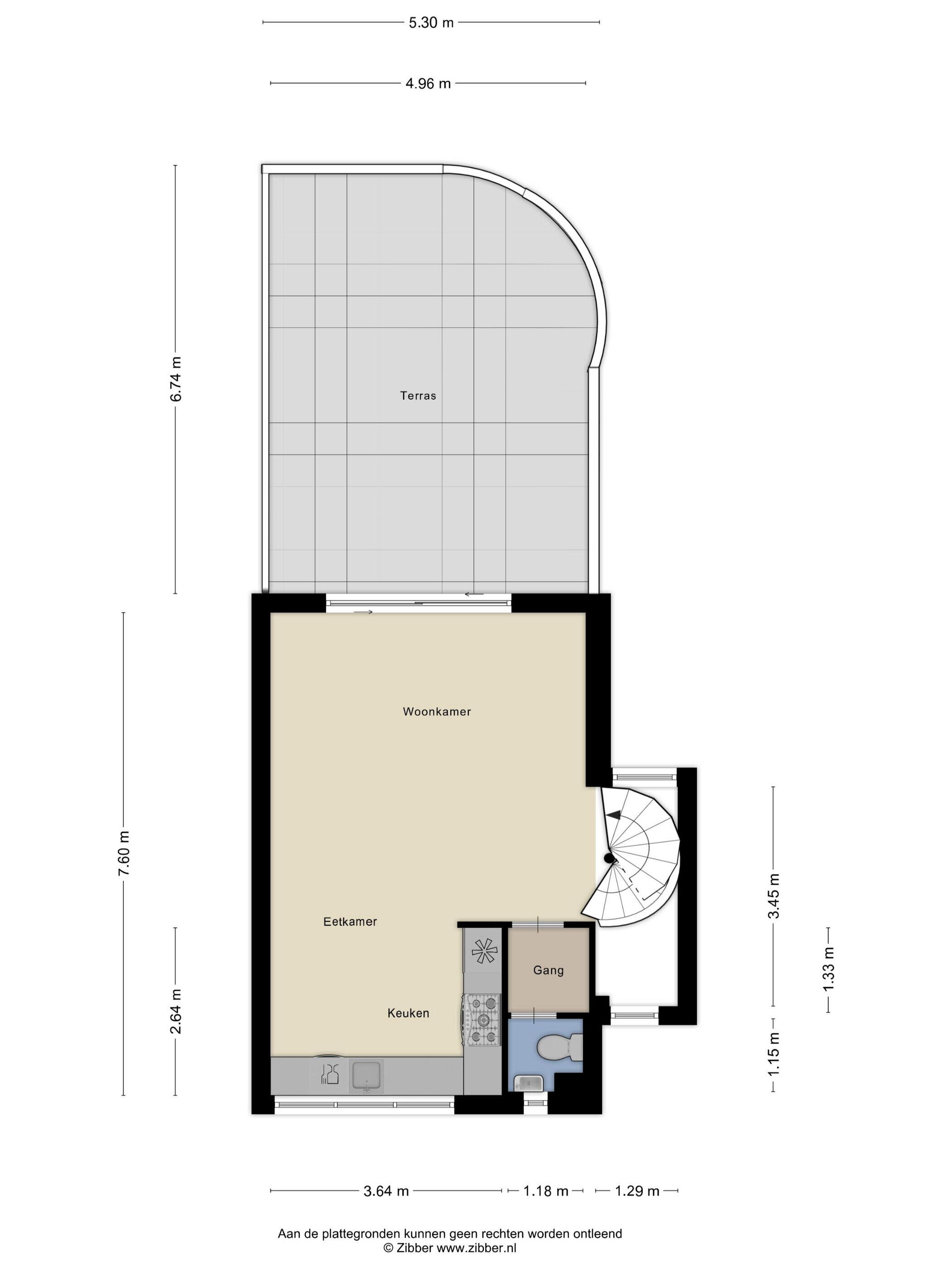
SLIMME INDELING OVER TWEE WOONLAGEN
Via de eigen entree kom je op de woonverdieping. Deze biedt een lichte woonkamer met open keuken, compleet met alle inbouwapparatuur. Via de schuifpui bereik je het dakterras van maar liefst 34m² - een heerlijke buitenruimte voor ontbijt in de ochtendzon of een aperitief aan het eind van de dag. Op de eerste verdieping vind je twee comfortabele slaapkamers - waarvan één voorzien van walk-in closet - en de moderne badkamer met inloopdouche en praktische bergingsruimtes.
WONEN BIJ WINKELCENTRUM EMICLAER
Deze maisonnette ligt direct naast het winkelcentrum Emiclaer, waar je alle dagelijkse voorzieningen binnen handbereik hebt. Elke donderdag brengt de weekmarkt extra leven in de omgeving. Voor de deur kun je gratis parkeren - een zeldzaam gemak in Amersfoort. Het nabijgelegen Stadpark Schothorst nodigt uit voor ontspannende wandelingen, terwijl je binnen enkele fietsminuten het NS-station Schothorst bereikt. De uitvalswegen zijn ook goed bereikbaar. Binnen een paar minuten rij je de A1 op.
BIJZONDERHEDEN
De servicekosten bedragen € 242 per maand en voor de aflossing van de verduurzamingslening van de VvE bedragen de kosten € 215 per maand. De kosten voor de verduurzamingslening zijn aftrekbaar net zoals de hypotheekrente.
• Energiezuinig wonen met label B
• Recent vernieuwde keuken en badkamer (2021)
• Nieuwe kozijnen met HR++ glas (2025)
• Royaal dakterras op het zuidwesten
• Berging op begane grond en extra gecreëerde berging onder de trap
• Gratis parkeren voor de deur
KOM JE KIJKEN?
We snappen dat een huis kopen meer is dan alleen een dak boven je hoofd. Het gaat om een thuis creëren, een plek waar je je écht op je gemak voelt. Daarom nemen we graag de tijd om samen met jou deze woning te bekijken tijdens een persoonlijke bezichtiging. Want wie weet? Misschien vind je hier wel het perfecte plekje om nieuwe herinneringen te maken. Bij Vlaming voel je je thuis, nog vóór je verhuist!
Neem gerust contact op met Vlaming Makelaardij voor een afspraak met Sjoerd Vlaming of Willeke van Munster - we helpen je met plezier op weg naar je nieuwe thuis!
Overdracht
- Vraagprijs
- € 395.000 k.k.
- Status
- Verkocht
- Aanvaarding
- In overleg
Bouw
- Object type
- Maisonnette, appartement
- Soort bouw
- Bestaande bouw
- Bouwjaar
- 1992
- Soort dak
- Plat dak
Oppervlakte en inhoud
- Woonoppervlakte
- 85 m²
- Inhoud
- 281 m³
- Externe bergruimte
- 8 m²
- Gebouwgeb. buitenruimte
- 34 m²
Indeling
- Aantal kamers
- 3 kamers (2 slaapkamers)
- Aantal badkamers
- 1 badkamer
- Badkamervoorzieningen
- Toilet, wastafel, inloopdouche
- Aantal woonlagen
- 2 woonlagen
- Voorzieningen
- Mechanische ventilatie, tv-kabel, airconditioning, schuifpui, glasvezel kabel, natuurlijke ventilatie
Energie
- Energielabel
- B
- Energielabel registratie
- 27-11-2025
- Isolatie
- Volledig geïsoleerd, hr glas
- Verwarming
- Cv-ketel
- Warm water
- Cv-ketel
- Cv ketel
- Intergas hr combiketel gas gestookt uit 2010 (eigendom)
Buitenruimte
- Ligging
- In woonwijk
- Balkon / dakterras
- Dakterras
- Tuin
- Zonneterras
- ligging tuin
- Gelegen op het zuidwesten
Bergruimte
- Schuur / berging
- Inpandig
Garage
- Soort garage
- Geen garage
Parkeergelegenheid
- Soort parkeergelegenheid
- Openbaar parkeren
VvE checklist
- Inschrijving KvK
- Ja
- Jaarlijkse vergadering
- Ja
- Periodieke bijdrage
- Ja
- Reservefonds aanwezig
- Ja
- Onderhoudsplan
- Ja
- Opstalverzekering
- Ja
Energieverbruik in Amersfoort
Energielabel deze woning
Energielabel B
Publicatie energielabel: 27-11-2025
Stroomverbruik per jaar
(Gemiddelde appartement in Amersfoort)
Gasverbruik per jaar
(Gemiddelde appartement in Amersfoort)
* Cijfers zijn afkomstig van het CBS en bedoeld als indicatie en kunnen verschillen voor deze woning
Indicatie hypotheeklasten
Eigen inleg:
Spaargeld / overwaarde
Rente:
Laagste 10-jaars rente
Laagste 10-jaars rente
2,85% - Centraal Beheer Groen... - NHG
3,08% - Centraal Beheer Groen... - 80%
Laagste 20-jaars rente
3,29% - Centraal Beheer Groen... - NHG
3,52% - Centraal Beheer Groen... - 80%
Laagste 30-jaars rente
3,41% - Centraal Beheer Groen... - NHG
3,74% - Centraal Beheer Groen... - 80%
Hypotheek:
Bruto maandlasten: € 0 p/m
Netto maandlasten: € 0 p/m
Hoe berekenen we dit?
Het rentepercentage is gebaseerd op de laagste 10 jaars vaste rente voor één hypotheekdeel. De vermelde rente (2.85% met NHG) is gecontroleerd op 27-01-2026. Deze berekening is gebaseerd op een annuïteitenhypotheek die volledig wordt afgelost, waarbij de maandlasten gedurende de gehele looptijd gelijk blijven. De werkelijke rente en netto maandlasten kunnen variëren, afhankelijk van uw persoonlijke situatie en de hypotheekverstrekker. Raadpleeg een financieel adviseur voor een nauwkeurige berekening en advies. Aan deze berekening kunnen geen rechten worden ontleend; het dient enkel als indicatie.
Documentatie
Kadastrale kaart
Leefomgeving
Meetrapport
WOZ waarderapport
BAG uittreksel
Plattegronden PDF
Brochure
Bezichtiging
Bod uitbrengen
Waardebepaling
Alles downloaden
Zonnegrenzen bekijken
Op de kaart
Inwoners in Amersfoort
Cijfers voor postcodegebied 3823
- Totaal aantal inwoners
- 11255 inwoners
- Mannen
- 49%
- Vrouwen
- 51%
Inwoners in Amersfoort
Cijfers voor postcodegebied 3823
- tot 15 jaar
- 17%
- 15 tot 25 jaar
- 14%
- 25 tot 35 jaar
- 22%
- 45 tot 65 jaar
- 35%
- 65 en ouder
- 13%
Huishoudens in Amersfoort
Cijfers voor postcodegebied 3823
- Eenpersoons zonder kinderen
- 31%
- Meerpersoons zonder kinderen
- 26%
- Huishoudens zonder kinderen
- 57%
Huishoudens in Amersfoort
Cijfers voor postcodegebied 3823
- Huishoudens met één kind
- 9%
- Huishoudens met meerdere kinderen
- 34%
- Huishoudens met kinderen
- 43%
Woningen in Amersfoort
Cijfers voor postcodegebied 3823
- Woningen voor 1945
- 1%
- Woningen tussen 1945 en 1965
- 1%
- Woningen tussen 1965 en 1975
- 1%
- Woningen tussen 1975 en 1985
- 1%
- Woningen tussen 1985 en 1995
- 90%
Woningen in Amersfoort
Cijfers voor postcodegebied 3823
- Woningen tussen 1995 en 2005
- 9%
- Woningen tussen 2005 en 2015
- 1%
- Woningen na 2015
- 1%
- Huurwoningen
- 30%
- Koopwoningen
- 70%
Overige in Amersfoort
Cijfers voor postcodegebied 3823
- Gemiddelde WOZ waarde
- € 296.000,-
- Personen onder de 65 met uitkering
- 7%
Overige in Amersfoort
Cijfers voor postcodegebied 3823
- Adressen per km²
- 2190
- Stedelijkheid (schaal 1 op 5)
- 80%
Vlaming Makelaardij
Indien u vragen heeft of u wilt een bezichtiging inplannen, dan kunt u gebruik maken van het formulier hiernaast. Er zal daarna op korte termijn contact met u worden opgenomen.
Contact opnemen
Over Vlaming Makelaardij
Bij ons staat één ding centraal: u zorgeloos begeleiden bij het aankopen, verkopen of taxeren van uw woning. Veel mensen kozen al voor onze aanpak en met trots kunnen we zeggen dat zij uiterst tevreden zijn over het resultaat.
In 2024 beoordeelden onze klanten onze dienstverlening met een 9,6 voor verkoopbegeleiding en een 9,5 voor aankoopbegeleiding. Dat zijn geen loze cijfers — het is het bewijs dat wij nét dat stapje extra zetten.
Wij zijn geen standaard makelaarskantoor. Persoonlijk contact, oprechte betrokkenheid en een resultaatgerichte werkwijze zijn voor ons vanzelfsprekend. We werken met energie en precisie. Sjoerd, Willeke en Timo brengen ieder ruim twintig jaar ervaring mee in het vak — expertise waar u direct de vruchten van plukt.
Vanaf onze locatie aan de Utrechtseweg 40 werken we volledig op maat. De woningmarkt verandert razendsnel en vraagt om een frisse manier van denken en communiceren. Daarom houden wij de lijnen kort, zorgen we voor laagdrempelig contact en gebruiken we moderne marketingmiddelen om uw woning onder de aandacht te brengen.
We nemen u zoveel mogelijk werk uit handen, zodat u met een ontspannen gevoel aan de volgende stap in uw woonreis kunt beginnen.
Als Amersfoorts NVM-kantoor blijven wij continu investeren in actuele kennis en opleiding. We beschikken over de grootste woningdatabase van Nederland, waardoor wij een betrouwbare en onderbouwde waardebepaling kunnen geven van uw woning of toekomstige woning.
Met onze ervaring en toewijding zetten we ons elke dag in voor het beste resultaat voor u. Maak gebruik van onze kennis en nodig ons vrijblijvend uit voor een persoonlijk gesprek.
Nieuwste reviews
-
Claudia Gringhuis
Aankoop: Wij zijn erg tevreden met de hulp van het hele team van Vlaming Makelaardij. Het is waardevol als iemand meekijkt bij een bezichtig...
-
Stille Steeg Oost 34
Veelvuldig persoonlijk contact en proactieve houding van de makelaar zijn heel waardevol.Meedenkend op een doortastende wijze!
-
Tom De Ridder
Wij zijn ontzettend goed geholpen bij de aankoop van onze nieuwe woning en daarna de verkoop van onze huidige woning. Het contact was vanaf...